
코난을 한번이라도 봤다면 익숙한 이 건물
탐정아저씨가 소유한 건물인데
1층 카페에서 세를 받아먹고 살고있음
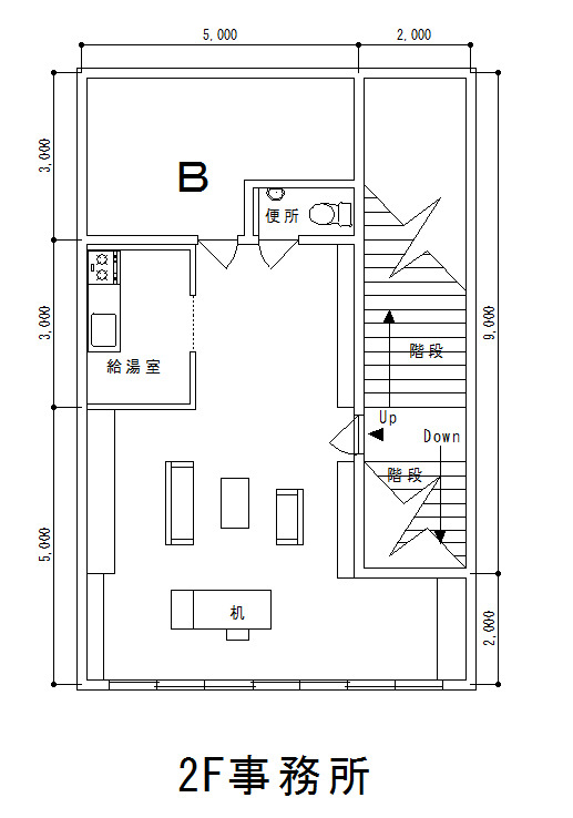
2층은 본인 사무실 3층은 집 4층은 옥상으로 사용

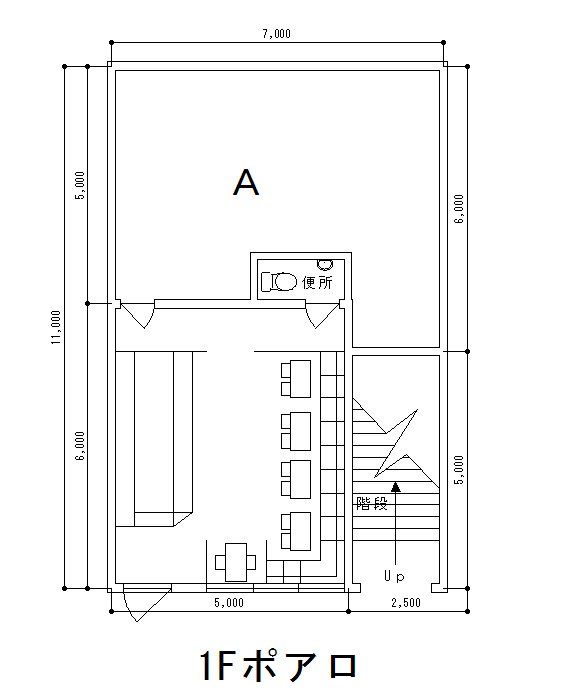
이곳이 바로 탐정아저씨 건물에서 세들어 사는 카페 포와로

건물이 크고 화려한편은 아닌데 일단 사람들 많이지나다니는곳에 자기 건물이 있다는거 자체가 메리트


1층 카페 포와로
한달에 약 40만엔 정도 준다고함 (작가피셜)
애니본사람은 알겠지만 저 카페 그닥 안큼 좀 비싸게 받아드시는듯 ㅎ; 한 10평남짓되나

2층 사무소

3층 모리네 집

4층 옥상

인스티즈앱
20대 남연예인 중에 서인국 처럼 설레게 날티나게 생긴 사람 없나..?